Коллекция Nice


Индивидуальный
3D Дизайн-проект
Приобретая у нас товар, вы получите дизайн-проект в подарок!
Состав коллекции Nice
n098331
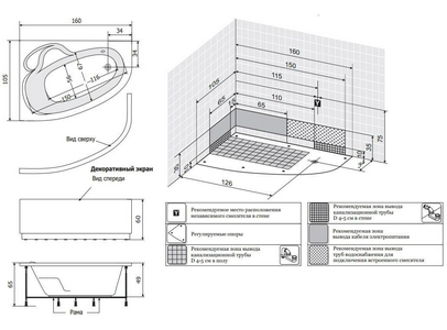
Ванна 160х105хh65см, ("Левая" отв.слива слева), без г/м, на каркасе, сифон в компл, БЕЗ панели, NICE ZZ

Цена
42700.00 Р / шт.